Out to Bid: Twin Rivers Block D
Sacramento, CA
Bids due December 7, 2022 by 2 PM
SEEKING SECTION 3 AND MBE/WBE PARTICIPATION
Scope of Work:
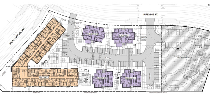
- 5 (ea) new affordable housing facility ( (4) 3-STORY + (1) 4-STORY) + Sitework.
- 116 total units.
- This project will be subject to State and Federal Prevailing Wages.
- Anticipated start: February 2023
- Anticipated completion: Fall 2025
Section 3 New Rule:
- 25% or more of the total number of labor hours worked by all workers are worked by Section 3 Workers.
- 5% or more of the total number of labor hours worked by all workers are worked by Targeted Section 3 Workers.
This project is subject to State and Federal Prevailing Wages.
General Contractor:
Midstate Construction Corporation
Developer:
McCormack Baron Salazar
Architect:
SVA Architects
Job Opportunities:
Seeking all trades for scopes of work and new hires in all trades for new construction, including but not limited to Mechanical, Electrical, Plumbing, Concrete, Masonry, Metals, Flooring, Painting, Waterproofing, Fireproofing, Openings, Finishes, and Furnishings. Section 3 Business concerns are encouraged to bid. Minority Business Enterprise (MBE) and Women Business Enterprise (WBE) Businesses are encouraged to bid. Section 3 workers and Section 8 residents are encouraged to apply for employment. For hiring inquiries please contact: bidroom@midstateconstruction.com and mirasolhires@mccormackbaron.com
Project Metrics:
Size: 5 Facilities, ranging from 3 to 4 story, 116 total dwelling units
Project Type: Affordable Family Housing
Dates:
Bid Due Date: December 7, 2022
Start Date: February 2023
Completion Date: Fall 2025
For More Information Please Contact:
Bidroom@midstateconstruction.com
Bidder’s List:
If you would like to bid this project or future projects, please sign up below.
Section 3 & MBE/WBE encouraged to bid.

